При сборке компрессорных станций расширенной комплектации на Бежецком заводе АСО для обеспечения компактности агрегатов используют воздухосборники вертикального типа.
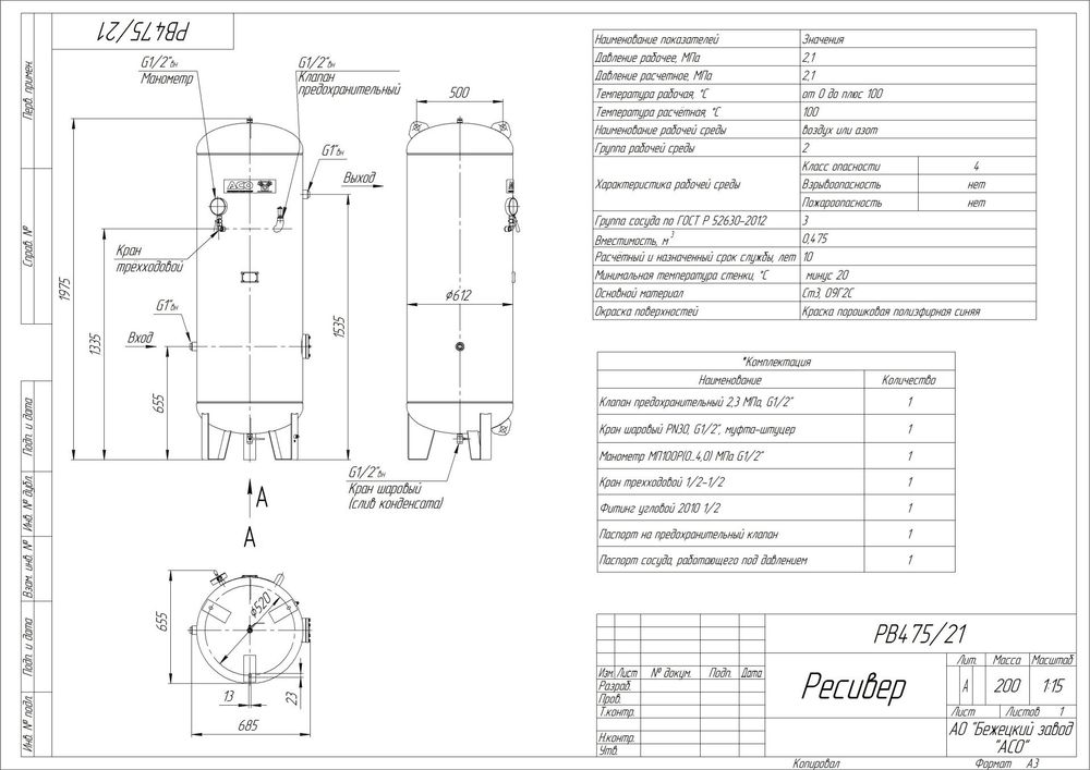
На верху вертикального ресивера РВ 475/21 монтируется компрессорная головка с электродвигателем, которая нагнетает вырабатываемый сжатый воздух в сосуд. Он представляет собой закругленный с обеих сторон цилиндр объемом 475 литров на трех опорных ножках.
Рассчитан на рабочее давление пневмопотока 21 бар. Использование металлического ресивера с защитным порошковым покрытием от коррозии позволяет стабилизировать давление пневмоэнергии перед подачей на потребляющую точку, нивелировать пульсации, исключить пневмоудары.
Присутствие воздухосборника позволяет частично осушать энергоноситель, так как при поступлении в бак воздух сильно расширяется, резко остывая при этом. Часть водяных паров конденсируется и стекает на дно сосуда, откуда по окончании работы сливается через специальное отверстие оператором.
Возможность использования пневморесурса из ресивера, если необходимо выполнить работу пневмоинструментом после полной остановки двигателя нагнетателя, исключает частые перепуски пневмостанции, что благотворно сказывается на рабочем ресурсе мотора и обеспечивает его плавный пуск.

